wj41h gb (a105) bellows globe valve product main structural features:
1, reasonable structure, reliable sealing, excellent performance, attractive appearance;
2, sealing surface is welded co cemented carbide, wear, corrosion, good anti-friction properties, long life;
3, stem quenched and surface nitriding treatment, good corrosion and abrasion resistance.;
4, double sealing performance is more reliable;
5, more intuitive stem down position indication;
6, part material, flange and butt size can be actual conditions or user requirements reasonable matching, to meet the needs of various projects.
wj41h gb (a105) bellows globe valve specifications:
| structure type | bb-bg-os & y |
| drive mode | manual |
| pneumatic | |
| design standards | din3356 |
| structure length | din3202 |
| connect the flange | din2543-2545 |
| test and inspection | din3230 |
wj41h gb (a105) bellows globe valve product performance specifications:
| nominal pressure (mpa) | shell test pressure (mpa) | seal test pressure (mpa) | applicable temperature (℃) | suitable media |
| 1.6 | 2.4 | 1.76 | -20 ° c to 350 ° c | water, steam, oil and so on |
| 2.5 | 3.75 | 2.75 | ||
| 4.0 | 6.0 | 4.4 |
wj41h gb (a105) bellows globe valve main components of material:
| no. | name | material |
| 1 | body | wcb, f304, f316 |
| 2 | disc | 2cr13, f304, f316 |
| 3 | shaft pin | f304, f316 |
| 4 | bellows assembly | f304, f316l |
| 5 | cap | wcb, f304, f316 |
| 6 | filler | flexible graphite, ptfe |
| 7 | pressure sleeve | 25 #, f304, f316 |
| 8 | positioning pieces | 25 #, f304, f316 |
| 9 | stem nut | copper alloy zqa19-4 |
| 10 | handwheel | carbon steel |
| 11 | and hat | 25 # |
| 12 | oil cup | brass |
| 13 | hex nuts | astma 193 2h, a 193-8, a 193-8m |
| 14 | studs | astma 193 b7, a193-b8, a193-b8m |
| 15 | gasket | flexible graphite + stainless steel l, ptfe |
| 16 | valve stem | 2cr13, f304, f316 |

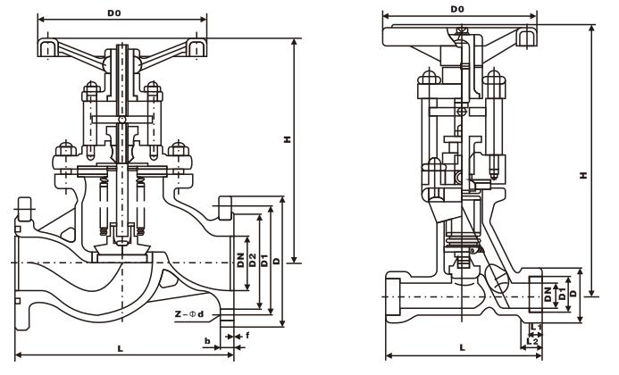
wj41h gb (a105) bellows globe valve-16
| pressure level | pn16 | |||||||||||||
| caliber | 15 | 20 | 25 | 32 | 40 | 50 | 65 | 80 | 100 | 125 | 150 | 200 | 250 | 300 |
| l | 130 | 150 | 160 | 180 | 200 | 230 | 290 | 310 | 350 | 400 | 480 | 600 | 730 | 850 |
| h | 205 | 205 | 217 | 230 | 235 | 240 | 285 | 310 | 370 | 430 | 445 | 560 | 695 | 740 |
| w | 120 | 120 | 140 | 140 | 160 | 180 | 180 | 200 | 250 | 300 | 300 | 400 | 520 | 520 |
| weight (kg) | 4.5 | 4.8 | 5.5 | 7.8 | 9.5 | 12.7 | 18.6 | 23.5 | 39.5 | 56.8 | 76.1 | 115 | 237.2 | 399.5 |
| travel h | 7 | 7 | 12 | 13 | 14 | 15 | 19 | 23 | 28 | 35 | 42 | 52 | 64 | 75 |
| kv | 4.2 | 7.4 | 12 | 19 | 30 | 47 | 77 | 120 | 188 | 288 | 410 | 725 | 1145 | 1635 |
wj41h gb (a105) bellows globe valve-25
| pressure level | pn25 | |||||||||||||
| caliber | 15 | 20 | 25 | 32 | 40 | 50 | 65 | 80 | 100 | 125 | 150 | 200 | 250 | 300 |
| l | 130 | 150 | 160 | 180 | 200 | 230 | 290 | 310 | 350 | 400 | 480 | 600 | 730 | 850 |
| h | 205 | 205 | 217 | 230 | 235 | 240 | 285 | 310 | 370 | 430 | 445 | 560 | 695 | 740 |
| w | 120 | 120 | 140 | 140 | 160 | 180 | 180 | 200 | 250 | 300 | 300 | 400 | 520 | 520 |
| weight (kg) | 4.5 | 4.8 | 5.5 | 8 | 9.8 | 13 | 19.2 | 24.3 | 43.7 | 57.9 | 81.6 | 137 | 288.1 | 420 |
| travel h | 7 | 7 | 12 | 13 | 14 | 15 | 19 | 23 | 28 | 35 | 42 | 52 | 64 | 75 |
| kv | 4.2 | 7.4 | 12 | 19 | 30 | 47 | 77 | 120 | 188 | 288 | 410 | 725 | 1145 | 1635 |
wj41h gb (a105) bellows globe valve-40
| pressure level | pn40 | |||||||||||||
| caliber | 15 | 20 | 25 | 32 | 40 | 50 | 65 | 80 | 100 | 125 | 150 | 200 | 250 | 300 |
| l | 130 | 150 | 160 | 180 | 200 | 230 | 290 | 310 | 350 | 400 | 480 | 600 | 730 | 850 |
| h | 205 | 205 | 217 | 230 | 235 | 240 | 285 | 310 | 370 | 430 | 445 | 560 | 695 | 740 |
| w | 140 | 140 | 140 | 160 | 180 | 180 | 200 | 250 | 300 | 350 | 350 | 450 | 520 | 520 |
| weight (kg) | 4.5 | 4.8 | 5.5 | 8.3 | 10.5 | 13.6 | 20.5 | 25.6 | 46.1 | 61.2 | 85 | 159 | 308.5 | 445 |
| travel h | 7 | 7 | 12 | 13 | 14 | 15 | 19 | 23 | 28 | 35 | 42 | 52 | 64 | 75 |
| kv | 4.2 | 7.4 | 12 | 19 | 30 | 47 | 77 | 120 | 188 | 288 | 410 | 725 | 1145 | 1635 |