v230 pressure regulating valve product description:
v230 pressure regulating valve produced and sold by woci valve group,it is composed of valve body, valve seat, valve core parts and other components. it is an energy-saving product that automatically adjusts the pressure without external energy and only depends on the pressure change of the medium itself to be adjusted. it can be used as a pressure control device for non-corrosive (max temperature 350℃) liquid, gas and steam and other media.widely used in petroleum, chemical, metallurgy, light industry and other industrial sectors and city heating, heating system.
◆ model, specifications
category | pressure control valve | differential pressure control valve | ||||||
valve pressure regulator | valve pressure regulator | differential pressure rise valve closed | pressure differential valve opens | |||||
hard seal | soft seal | hard seal | soft seal | hard seal | soft seal | hard seal | soft seal | |
model | v230 d01 | v230d01 | v230d02 | v231d02 | v230d03 | v231d03 | v230d04 | v231d04 |
specification | dn15-250 | |||||||
v230 pressure regulating valve technical parameters:
nominal diameter mm | 15 | 20 | 25 | 32 | 40 | 50 | 65 | 80 | 100 | 125 | 150 | 200 | 250 | |
rated flow coefficient kvs | 3.2 | 5 | 8 | 12.5 | 20 | 32 | 50 | 80 | 125 | 160 | 320 | 450 | 630 | |
nominal pressure mpa | 1.6, 4.0 | |||||||||||||
z value | 0.6 | 0.6 | 0.6 | 0.55 | 0.55 | 0.5 | 0.5 | 0.45 | 0.4 | 0.35 | 0.3 | 0.2 | 0.2 | |
the highest working temperature ℃ | v230 v231 | liquid ≤ 140, gas ≤ 80 | ||||||||||||
hard seal v230 | with isolation tank ≤ 200 | with isolation tank and extension pieces ≤ 300 * | ||||||||||||
with isolation tank and heat sink ≤ 200 | ||||||||||||||
pressure balance element | corrugated pipe | rolling the diaphragm | ||||||||||||
flange standard | dia (also available on request flange standard) | |||||||||||||
body material | pn16: cast iron (working temperature ≤ 200 ℃); pn4.0: cast steel, cast stainless steel (working temperature ≤ 350 ℃) | |||||||||||||
spool material | stainless steel; soft seal stainless steel inlaid rubber ring | |||||||||||||
the maximum working pressure mpa | nominal pressure (note △ pmax and the relationship between working pressure and working temperature) | |||||||||||||
note: 1, the liquid> 140 ℃, gas> 80 ℃ when the valve flip; 2, z value: noise measurement coefficient, the value used to measure the size of the noise, the specific calculation see the self-regulating valve selection guide.
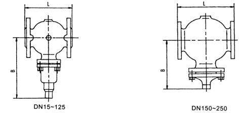
◆ dimension

nominal diameter mm | 20 | 25 | 32 | 40 | 50 | 65 | 80 | 100 | 125 | 150 | 200 | 250 |
l mm | 150 | 160 | 180 | 200 | 230 | 290 | 310 | 350 | 400 | 480 | 600 | 730 |
b mm | 212 | 238 | 238 | 240 | 240 | 275 | 275 | 380 | 380 | 295 | 325 | 372 |
approximate weight kg | 6.7 | 9.7 | 13 | 14 | 17 | 29 | 33 | 60 | 70 | 80 | 140 | 220 |
◆ d02 (d04) actuator size and weight
effective area cm 2 | 32 | 80 | 250 | 630 |
d mm | 172 | 172 | 263 | 380 |
h mm | 435 | 430 | 470 | 520 |
approximate weight kg | 7.5 | 7.5 | 13 | 28 |

effective area cm 2 | 32 | 80 | 250 | 630 |
d mm | 172 | 172 | 263 | 380 |
h mm | 440 | 435 | 440 | 520 |
approximate weight kg | 7.5 | 7.5 | 13 | 28 |
note: direct acting self-operated valve of the total height and weight for the control valve and actuator height and weight.