f9t43x electric push rod blind valve product overview
f9t43x electric push rod blind valve produced and sold by woci valve group, also known as electric push rod fan glasses valve, electric push rod fan flap, mainly by the left valve body, the right valve body, stem, gate , seals, electric putter and other components, and by the base, the support column to form a rigid structure. sealing parts with stainless steel and rubber seals, good sealing performance, long service life, set the seal on the gate, easy to replace the seal when the seal, rubber seals set in the gate. electric push rod blind valve can be a single long-distance control, remote control can also be more than one network, under normal circumstances can also use the valve itself device manual operation.
f9t43x electric push rod blind valve product features
1, the valve in the switching process, the door seals no wear and tear, sealing performance and easy to replace the seal.
2, the transmission uses the principle of the connecting rod mechanism, the structure is simple and suitable for the harsh environment of the work place, the transmission stroke is accurate and the clamping force of the clamping mechanism at the three clamping points is even.
3, taking into account the structural characteristics of the blind valve, blind valve seal at the weaknesses of two rigid strengthening treatment, the sealing performance more reliable.
4, electric push rod positioning using a new type of inductive electrical appliances, reducing the sender may produce unnecessary sparks, the use of safer.
5, due to gas flow, easy to valve stainless steel telescopic bellows erosion phenomena, the valve design in the pipeline chamber bellows diversion sleeve with good wear resistance 16mn steel while increasing its thickness.
6, sealing ring material selection of high temperature resistant and gas-resistant fluorine rubber.
f9t43x electric push rod blind valve scope of application
f9t43x electric push rod blind valve is based on gb6222 "industrial gas safety regulations," the relevant standards while digesting and absorbing advanced technology at home and abroad, based on their own research and development of a new generation of products, mainly used in various industrial and mining enterprises, environmental protection and other industries gas, air, flue gas and other gas pipeline media, as cut off all kinds of toxic, harmful and reliable device.
f9t43x electric push rod blind valve working principle
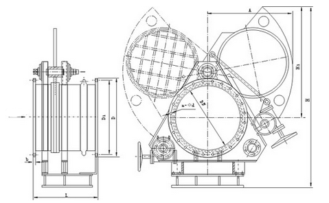
first electric clamping push rod through the motor-driven, the thrust through the crank directly on the active clamping screw stem to rotate and make the three threaded stem through the link mechanism to do synchronous rotation, driven by the respective left and right valve lever nut so that the left valve body and the valve body in the same time compressing the bellows to the valve plate as the center of the relative movement so that the door gasket completely from the two body seals. re-start the electric push rod thrust will be the door blind ring and through-ring replacement, electric clamping push rod action again, will clamp the door rubber seal, so as to achieve the valve seal. the door is composed of a blind plate and a through ring. when the tightening mechanism is released, the door can rotate and change positions to realize the valve switch.
f9t43x electric push rod blind valve technical parameters
nominal pressure pn (mpa) | 0.25 | 0.15 | 0.10 | 0.05 |
seal test pressure (mpa) | 0.275 | 0.165 | 0.11 | 0.055 |
strength test pressure (mpa) | 0.375 | 0.225 | 0.15 | 0.075 |
drive source | electric device | |||
applicable temperature (℃) | nitrile rubber | silicone rubber | fluororubber | |
-20-100 | -20-200 | -20-300 | ||
suitable media | gas and other toxic and harmful gases | |||
opening and closing time (s) | ≤ 60 | |||
the main components of the material | valve body, the gate for the carbon steel; screw for the alloy steel; nut manganese copper alloy, ductile iron; expansion device for stainless steel | |||
f9t43x electric push rod blind valve size specifications

dn (mm) | overall dimensions (mm) | ||||
d | d1 | b | n-φd | l | |
300 | 440 | 395 | 18 | 12-φ22 | 500 |
350 | 490 | 445 | 18 | 12-φ22 | 600 |
400 | 540 | 495 | 24 | 16-φ22 | 600 |
450 | 595 | 550 | 24 | 16-φ22 | 600 |
500 | 645 | 600 | 26 | 20-φ22 | 600 |
600 | 755 | 705 | 26 | 20-φ26 | 600 |
700 | 860 | 810 | 26 | 24-φ26 | 600 |
800 | 975 | 920 | 35 | 24-φ30 | 800 |
900 | 1075 | 1020 | 35 | 24-φ30 | 800 |
1000 | 1175 | 1120 | 35 | 28-φ30 | 800 |
1100 | 1275 | 1220 | 35 | 36-φ30 | 800 |
1200 | 1375 | 1320 | 35 | 32-φ30 | 800 |
1300 | 1475 | 1420 | 35 | 36-φ30 | 800 |
1400 | 1575 | 1520 | 35 | 36-φ30 | 800 |
1500 | 1675 | 1620 | 35 | 36-φ30 | 850 |
1600 | 1790 | 1730 | 35 | 40-φ30 | 850 |
1800 | 1990 | 1930 | 35 | 44-φ30 | 1100 |
2000 | 2190 | 2130 | 35 | 46-φ30 | 1100 |