z43h flat gate valve with diversion overview
z43h flat gate valve with diversion produced and sold by woci valve group for class150 ~ 900 / pn1.0 ~ 16.0mpa, operating temperature -29 ~ 121 ℃ of oil, natural gas, water, oil and other pipeline, used to cut off or connect the medium in the pipeline.
z43h flat gate valve with diversion applications
flat gate valve for natural gas, petroleum, chemical, environmental protection, urban pipelines, gas pipelines and other pipeline, venting system and steam storage devices, used as hoist equipment.
z43h-type single gate with diversion gate valve for natural gas extraction and purification of long-distance pipeline.
z43h flat gate valve with diversion structural features
1, the seat with o-ring seal and preload force applied to the floating valve seat structure, so that the two-way seal plate gate valve import and export; and the structure of the opening and closing torque of only ordinary valve 1/2, to achieve ease open and close the valve
2, at full open, the channel is smooth to a straight line, the flow resistance coefficient is minimal, no pressure loss, can be used to clean the pipeline hair ball
3, with self-sealing packing structure, without frequent regulation, on, off extremely lightweight and reliable sealing, the packing box is equipped with an auxiliary seal grease injection structure, the sealing performance is absolutely reliable, truly zero leakage; solve the general valve packing the most easy to leak the shortcomings
4, out of cavity high pressure, to ensure the safety of use
5, fully enclosed structure, good protective performance, can adapt to all-weather requirements
1. sealing structure of the valve seat should be elastic pre-tightening force, sealing structure at the same time downstream sealing seat. seat and seal are always face-to-face seals. 2. seat has a self-cleaning function, and the valve is opened or closed during the direct flow of air erosion. seat should be made of lubricated, non-abrasive material. 3. valve actuator failure does not affect the rest of the valve, maintenance and replacement work can be carried out without removing the valve. (1) yoke sleeve - the aluminum bronze yoke sleeve is equipped with a needle thrust bearing to minimize operating torque. (2) stem - thread length up to bracket; pin and spot welding; stable. (3) pressure sealed - simple to assemble, with sectional buckle and silver-plated mild steel washers to help disassemble and achieve the best bonnet seal. (4) seat ring - welded seat ring is perpendicular to the flow path for easy maintenance. (5) actuators - these valves can be equipped with electric, hydraulic or pneumatic actuators. dn300 following the standard configuration handwheel, dn350 above configuration helical gear operating mechanism. (6) yoke - the fully assembled yoke passes the seismic test for easy maintenance and installation of the actuator. (7) gland - two-piece, self-adjusting gland to avoid being ejected. (8) overall rear seat - hard surface, the longest service life. (9) flap - the spring-loaded flap regulates itself to reduce actuator torque demand. (10) the overall stop - the overall casting bracket stopper device, positioning the assembly of the bracket valve, making the valve seat more stable and reliable.
z43h flat gate valve with diversion standard specification
design and manufacture of standards: jb / t 5298 structure length standard: jb / t 5298 flange standard: gb / t 9113 pressure temperature level: gb / t 12224-2005 test tests: gb / t 13927-2008, jb / t 5298
z43h flat gate valve with diversion parts materials and conditions
part name | parts and materials | |||
jb / t7298 | api 6d | |||
valve / bonnet | wcb | wcb | a352-lcb | a351-cf8m |
gate | 2cr13 + enp | 20crmov + stl | ansi 410 + enp | ansi 316 + enp |
valve stem | 2cr13 | 2cr13 | a182-f6a | a182-f316s |
seat | 25 + ptfe | 20crmov + stl | a105 + ptfe | a182-f316 + ptfe |
filler | nbr / fpm | flexible graphite | teflon | |
gasket | 18-8 / flexible graphite | |||
bolt | 35 | 35crmo | a193-b7m | a193-b8 |
proper temperature | -29 ~ 250 ℃ | -29 ~ 550 ℃ | -46 ~ 250 ℃ | -40 ~ 200 ℃ |
suitable media | water, oil | steam, oil | propane, ethylene | nitric acids |
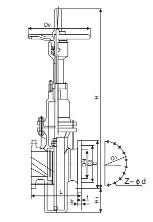
z43h flat gate valve with diversion main size and weight

nominal diameter | structure length l | h | h1 | ||||
dn | nps | manual | bevel gear drive | pneumatic | electric | ||
25 | 11/4 | 127 | \ | \ | \ | \ | \ |
32 | 11/4 | 165 | 385 | \ | \ | \ | 63 |
40 | 11/2 | 165 | 385 | \ | \ | \ | 63 |
50 | 2 | 178 | 415 | \ | \ | \ | 74 |
65 | 21/2 | 190 | 462 | \ | \ | \ | 83 |
80 | 3 | 203 | 563 | \ | \ | \ | 95 |
100 | 4 | 229 | 648 | \ | \ | \ | 109 |
125 | 5 | 254 | 715 | \ | \ | \ | 125 |
150 | 6 | 267 | 836 | \ | 636 | 979 | 144 |
200 | 8 | 292 | 1034 | \ | 796 | 1096 | 176 |
250 | 10 | 330 | 1230 | \ | 960 | 1297 | 204 |
300 | 12 | 356 | 1405 | 1460 | 1118 | 1520 | 240 |
350 | 14 | 381 | 1607 | 1642 | 1305 | 1768 | 263 |
400 | 16 | 406 | 1775 | 1865 | 1425 | 1935 | 293 |
500 | 20 | 457 | 2176 | 2251 | 1724 | 2300 | 350 |
600 | 24 | 508 | 2564 | 2642 | 1995 | 2770 | 403 |
700 | 28 | 610 | 2950 | 3128 | 2293 | 3570 | 450 |
800 | 32 | 660 | 3335 | 3515 | 2675 | 3985 | 507 |
900 | 36 | 711 | 3720 | 3900 | 3060 | 4370 | 555 |
1000 | 40 | 811 | 4105 | 4290 | 3445 | 4755 | 610 |