gb flat gate valve without diversion hole features
gb flat gate valve without diversion hole produced and sold by woci valve group, this series of valves has the characteristics of reliable sealing, small opening and closing torque, anti-sulfur wear-resistant, long service life, can be used to clean the hair ball pipe and other characteristics; for water, oil, natural gas, steam and other non-corrosive and corrosive media of the pipeline system for hoist device, especially for petrochemical, oil, gas, long-distance pipeline and other fields.
nominal pressure | product number | |
1.0 to 16.0 mpa | no diversion hole | z6s43wf, z6s43wd, z6s43wy, z6s43wbf, z6s43wby |
diversion hole | z6s43nf, z6s43df, z6s43yf, z6s43f, z6s43d, z6s43y |
gb flat gate valve without diversion hole performance specifications
pressure level | pressure test at room temperature (mpa) | applicable temperature (℃) | suitable media | |||||||
case | left seal | right seal | low pressure seal | "g" type | "d" type | normal type | "kz" type | "z" type | ||
nominal pressure | 1.0 | 1.5 | 1.1 | 1.1 | 0.6 | -29 ~ 250 | -45 ~ 121 | -29 ~ 121 |
| oil, gas, |
1.6 | 2.4 | 1.76 | 1.76 | 0.6 | ||||||
2.5 | 3.75 | 2.75 | 2.75 | 0.6 | ||||||
4.0 | 6.0 | 4.4 | 4.4 | 0.6 | ||||||
6.4 | 9.6 | 7.04 | 7.04 | 0.6 | ||||||
10.0 | 15.0 | 11.0 | 11.0 | 0.6 | ||||||
16.0 | 24.0 | 17.6 | 17.6 | 0.6 | ||||||
lb | 150 | 2.93 | 2.07 | 2.07 | 0.6 | |||||
300 | 5.52 | 5.52 | 5.52 | 0.6 | ||||||
400 | 10.0 | 7.31 | 7.31 | 0.6 | ||||||
600 | 15.0 | 11.03 | 11.03 | 0.6 | ||||||
900 | 22.4 | 16.54 | 16.54 | 0.6 | ||||||
gb flat gate valve without diversion hole main part material
part name | body, bonnet | gate | valve stem | seat | stem nut | sealing ring | filler | seal means |
"z" type | wcb | alloy steel (special treatment) | stainless steel | alloy steel | aluminum bronze | fill ptfe | filled ptfe, | oil seal grease |
"kz" type | sulfur-resistant stainless steel | anti-sulfur sealant |
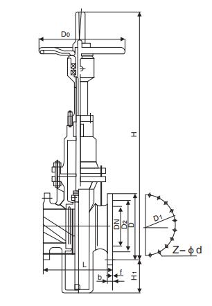
gb flat gate valve without diversion hole main dimensions

dn | pn16 | pn40 | pn40 | pn100 | pn160 | 900lb |
50 | 178 | 216 | 250 | 292 | 280 | 330 |
65 | 190 | 241 | 280 | 330 | 315 | 356 |
80 | 203 | 283 | 310 | 356 | 380 | 381 |
100 | 229 | 305 | 350 | 432 | 425 | 457 |
125 | 254 | 381 | 400 | 508 | 480 | 559 |
150 | 267 | 403 | 450 | 559 | 530 | 610 |
200 | 292 | 419 | 550 | 660 | 620 | 737 |
250 | 330 | 457 | 650 | 787 | 730 | 838 |
300 | 356 | 502 | 750 | 838 | 850 | 965 |
350 | 381 | 762 | 850 | 889 | 980 | 1029 |
400 | 406 | 838 | 950 | 991 | 1100 | 1130 |
450 | 432 | 914 | 1050 | 1092 | 1200 | 1219 |
500 | 457 | 991 | 1150 | 1194 | 1250 | 1321 |
600 | 508 | 1143 | 1350 | 1397 | 1450 | 1549 |
700 | 610 | 1346 | 1450 |